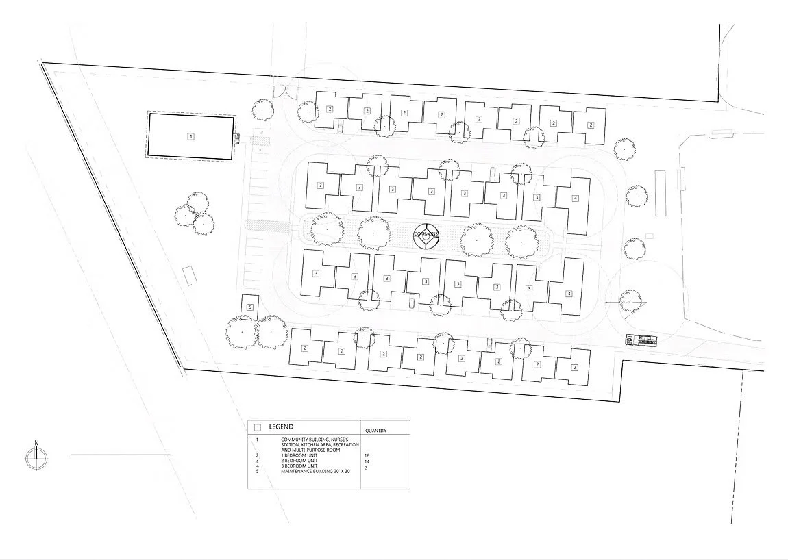
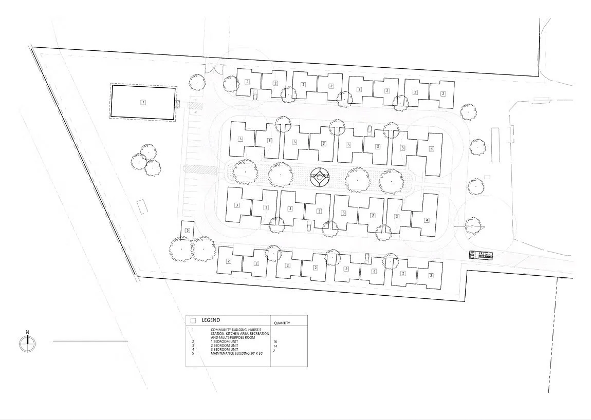
North River’s Edge Apartments in Newark, Ohio

North River’s Edge Apartments in Newark, Ohio


Project Overview:

  • Location: Newark, Ohio

  • Type: Residential Architecture – Multi-Family Apartments

    Rhythm Architecture designed North River’s Edge Apartments to provide modern and functional multi-family housing in Newark, Ohio. The project features efficient residential layouts and community-focused design, creating a comfortable living environment that supports everyday life while enhancing the surrounding neighborhood.

Previous
Previous

Souder Residence in Columbus, Ohio