Hamlet St. Residence in Columbus, Ohio

Hamlet St. Residence in Columbus, Ohio


Project Overview:

  • Location: Columbus, Ohio

  • Type: Residential Architecture – Custom Home

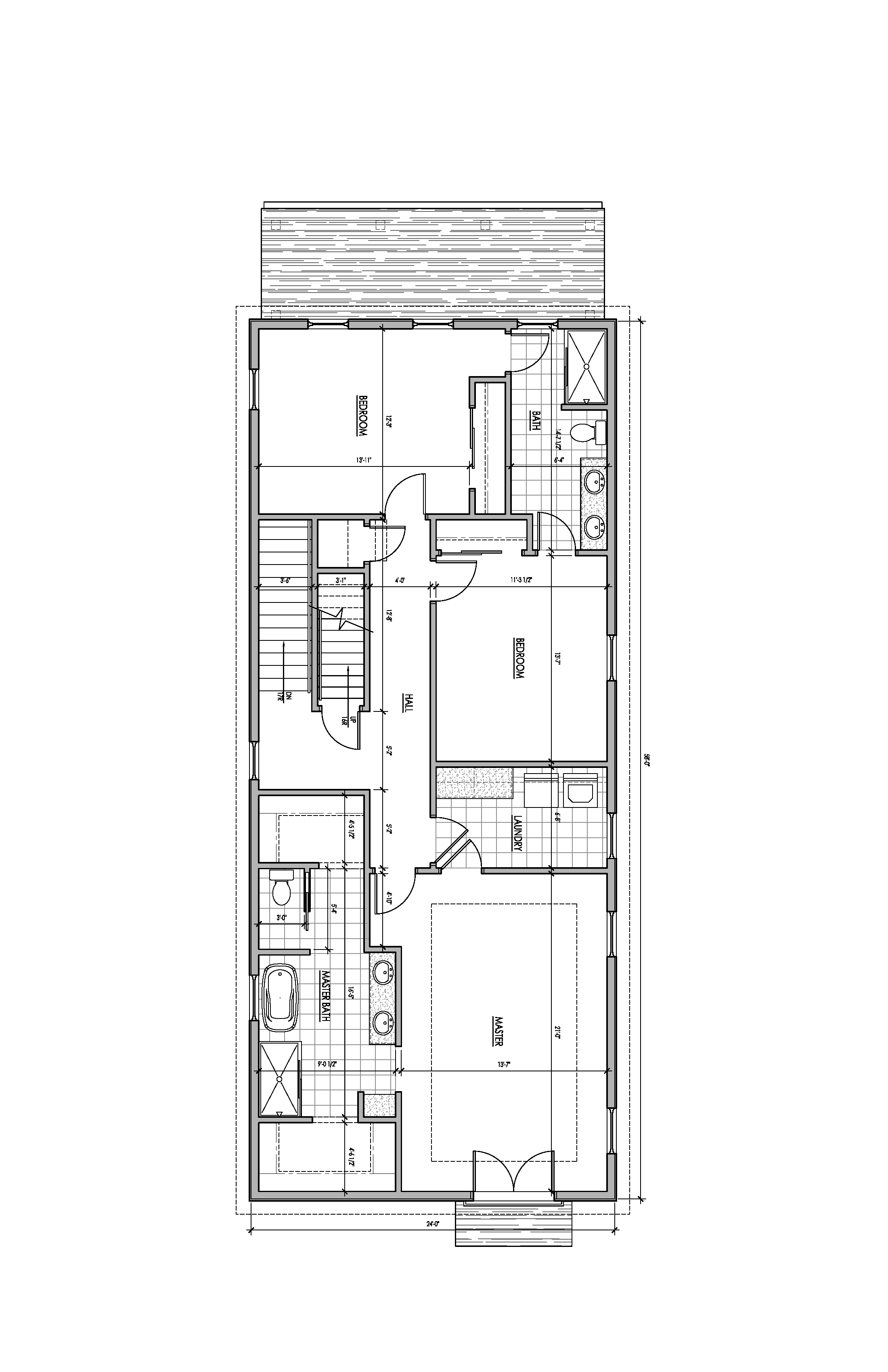
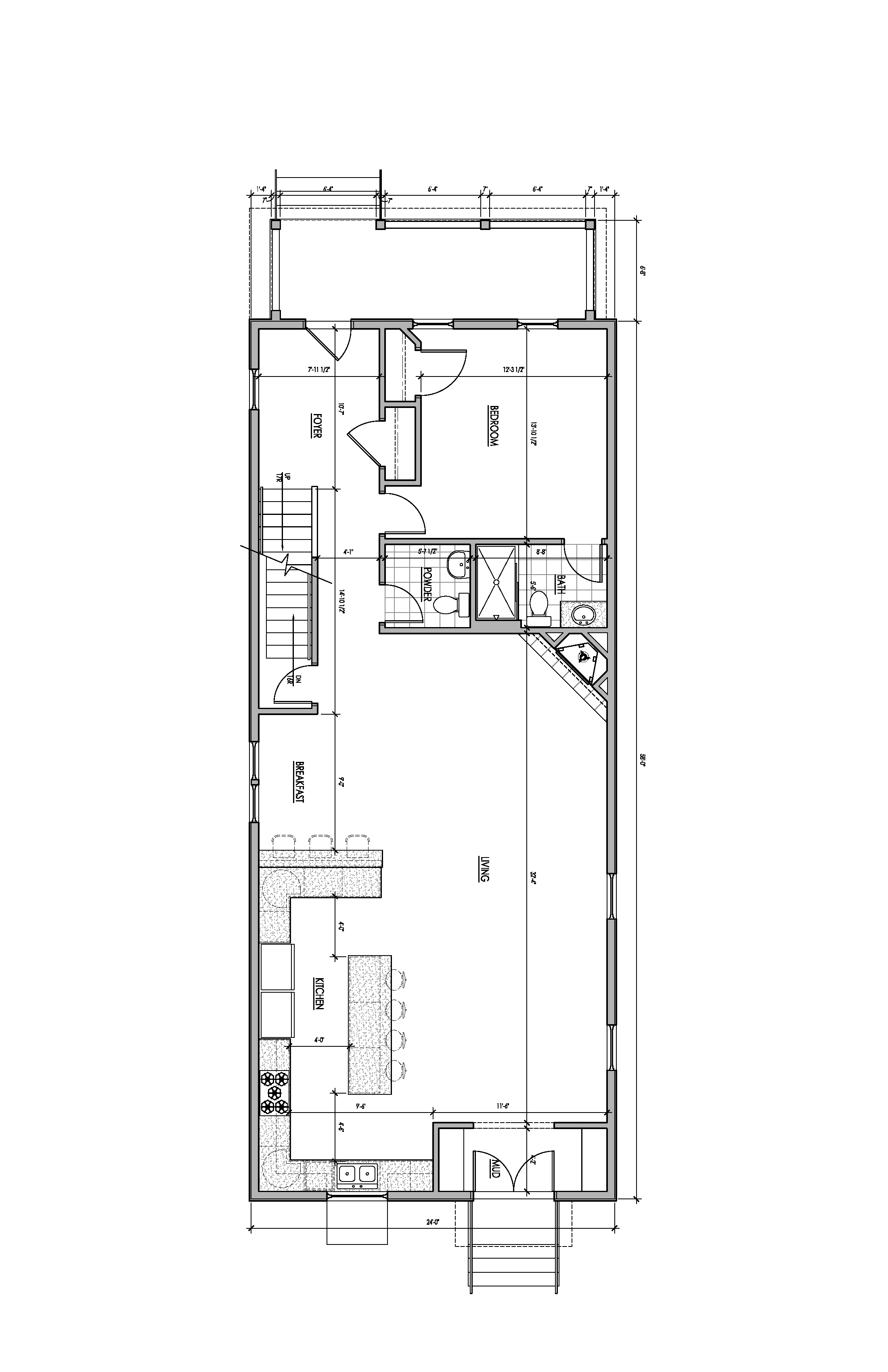
    Rhythm Architecture designed the Hamlet St. Residence to provide a modern and functional living environment in Columbus, Ohio. The project focuses on thoughtful residential planning, comfortable living spaces, and architectural details that support both everyday living and long-term livability.

Previous
Previous

Highland Street Residence in Columbus, Ohio

Next
Next

Avalon Residence in Avalon, New Jersey